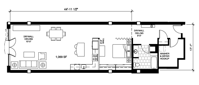
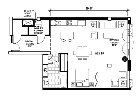
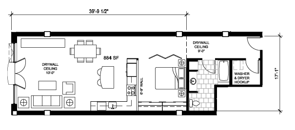
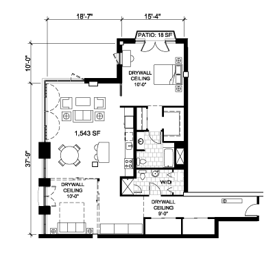
13th Floor

Note: For unit floor plans that are not pictured, see floor layout to find its corresponding floor plan.

Unit 1301

Unit 1302

Unit 1303

Unit 1305

Unit 1307

Unit 1310

Unit 1311

Unit 1315

Unit 1317

13th Floor Layout